
湖南市平松】甲西駅徒歩3分の限定2区画!駅近で45坪・1,500万円台の分譲地を紹介!
1. 【湖南市×駅近土地】甲西駅徒歩3分の好立地!

湖南市で土地探しをしている方に朗報です! 今回紹介するのは、JR甲西駅から徒歩3分という圧倒的な利便性を誇る分譲地。
2区画限定で【価格】1,524〜1,568万円で駅近が手に入ります!
甲西駅前2区画1号地||滋賀県湖南市の不動産をお探しなら奥村開発

通勤・お買い物の負担が大幅に減る、人気のエリアです。
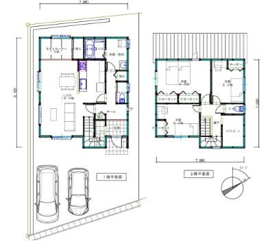
3. 【土地面積】約44~46坪で理想の家づくりが可能!

約45坪のゆとりある敷地は、
駐車2台は十分に駐車できる「4LDK」。
広めのリビングなど、家族が快適に暮らせる間取りが実現しやすいサイズです。
4. 【周辺環境】生活施設が徒歩圏内で便利!

駅前でありながら、落ち着いた住環境が魅力。 買い物施設や学校も近く、子育て世帯にも人気のエリアです。
甲西駅徒歩3分という希少性に加え、 1,500万円台・約44~46坪という理想的な条件が揃った分譲地。 湖南市で家づくりを検討している方は、ぜひ一度チェックしてみてください。
他の分譲地も確認したい人はこちら↓↓↓
新着の売買物件物件一覧|滋賀県湖南市の不動産をお探しなら奥村開発
甲西駅近物件!モデルハウス売却します!↓↓↓
奥村開発のモデルハウス販売してます!|滋賀県湖南市の不動産をお探しなら奥村開発