奥村ビル

4.9万円~13.2万円 管理/共益費 2,000円~13,200円

滋賀県湖南市平松北2丁目9

草津線「甲西」駅徒歩6分

価格
4.9万円~13.2万円 管理/共益費 2,000円~13,200円
間取り/面積
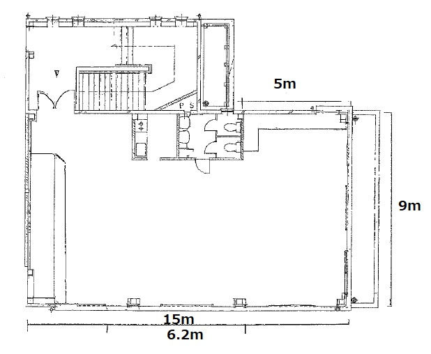
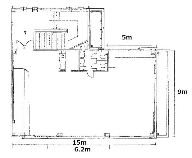
~3DK/57.00㎡~135.00㎡
所在地
滋賀県湖南市平松北2丁目9
築年
1988年11月(築37年)
駐車
空有
交通

草津線甲西」駅 徒歩6分

奥村ビルの基本情報

物件名
奥村ビル
価格
4.9万円~13.2万円
管理/共益費
2,000円~13,200円
築年月
1988年11月(築37年)
総戸数
6戸
所在地
滋賀県湖南市平松北2丁目9
交通

草津線甲西」駅 徒歩6分

奥村ビルの詳細情報

設備条件
設備(その他)
    -
駐車場/月額
空有/4,000円 (税込)
用途地域
-
戸数
6戸 / -
取引態様
専任媒介

奥村ビルで募集中の物件

  1. 202

    17.24坪 (57.00㎡)

    4.9万円(2842.23円/坪)

  2. 2階

    40.83坪 (135.00㎡)

    13.2万円(0.32万円/坪)

周辺施設

  • ラ・ムー湖南店の画像

    スーパー

    ラ・ムー湖南店

    417m(6分)

近隣の物件

  1. 湖南市平松北3丁目

    3LDK (68.36㎡)

    6.2万円

  2. 湖南市平松

    2DK (34.78㎡)

    3万円

  3. 湖南市三雲

    1K (26.32㎡)

    4.6万円

  4. 湖南市石部北1丁目

    2DK (45.54㎡)

    5.1万円

奥村ビル

お気軽にお問い合わせください

無料お問い合わせ

奥村開発

0748-72-1988

09:00 ~ 18:00

(休:毎週水曜日 第1.2.3.5火曜日)