栗東市下戸山

1,280万円

滋賀県栗東市下戸山

草津線「手原」駅バス12分「リバティヒル下戸山」停歩5分

東海道本線「草津」駅

価格
1,280万円
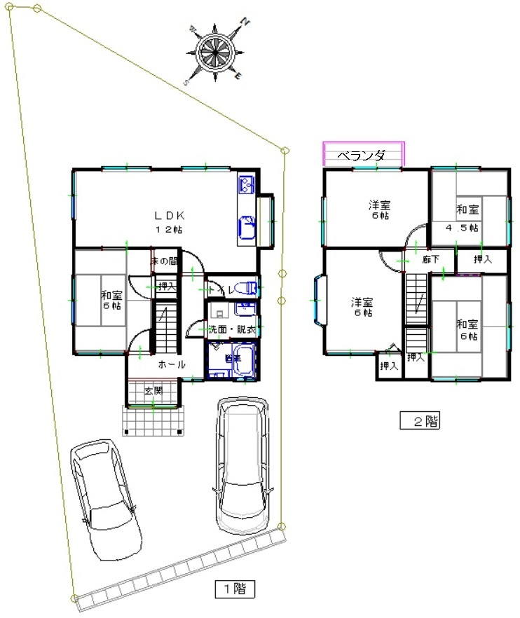
間取り
5LDK
土地面積
140.30㎡
所在地
滋賀県栗東市下戸山
交通

草津線手原」駅 バス12分 「リバティヒル下戸山」 停歩5分

東海道本線草津」駅 

建物面積
91.08㎡
築年月
1994年9月(築31年)

物件の特徴

  • バストイレ別

  • 室内洗濯機置場

基本情報

販売戸数
-
総戸数
-
間取り / 詳細
5LDK
LDK 12.0帖 1室/和室 6.0帖 1室/洋室 6.0帖 2室/和室 6.0帖 1室/和室 4.5帖 1室
向き
-
建物面積(坪数)
91.08㎡(27.55坪)
土地面積(坪数)
140.30㎡(42.44坪)
建ぺい率 /
容積率
60%/200%
築年月
1994年9月(築31年)
駐車場 /
月額料金
有(屋根有) -
土地権利
所有権
土地
(敷金 / 保証金)
- / -
建物構造
木造 / 2階建
傾斜地部分面積
-
路地状敷地
-
私道負担面積
-
セットバック
高圧線下面積
-
施工会社
-
用途地域
工業
地目 / 地勢
宅地 / 平坦
接道状況
一方(南東 公道 9.1m 間口 7.5m)
国土法届出要否
不要
都市計画
市街化区域
総区画数 /
販売区画数
-/-
現況
居住中
その他
法令上の制限
-
取引態様
専任媒介
引渡し
相談
リフォーム
    2014年2月
    キッチン トイレ 壁 床 全室
取引条件の
有効期限
2025年11月22日

設備条件

設備条件
  • リフォーム済 / 室内洗濯機置場 / フローリング / プロパンガス / 公営水道 / 公共下水 / 電気有 / 照明器具付き / 駐車2台可 / ガスコンロ / コンロ2口以上 / システムキッチン / コンロ3口 / バス・トイレ別 / 温水洗浄便座 / 洗髪洗面化粧台 / エアコン
設備(その他)
    -

その他

物件番号
97446232
管理コード
2116
建築確認番号
-
情報更新日
2025年11月08日
次回更新予定日
2025年11月22日

支払いシミュレーション

月々の支払額
9.6
購入希望物件価格
万円
頭金
万円
金利
%
返済額(ボーナス1回分)
万円
返済期間

※ボーナスは自動で年2回分で計算されます。

栗東市下戸山

栗東市下戸山

1,280万円

-

5LDK(91.08㎡)

お気軽にお問い合わせください

無料お問い合わせ

奥村開発

0748-72-1988

09:00 ~ 18:00

(休:毎週水曜日 第1.2.3.5火曜日)