湖南市中央4丁目

1,880万円

滋賀県湖南市中央4丁目

草津線「甲西」駅徒歩12分

価格
1,880万円
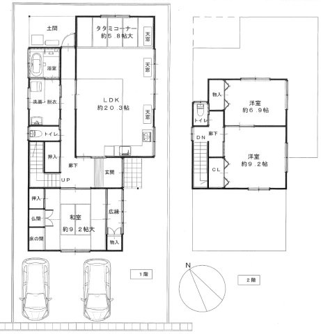
間取り
3LDK
土地面積
196.59㎡
所在地
滋賀県湖南市中央4丁目
交通

草津線甲西」駅 徒歩12分

建物面積
129.29㎡
築年月
1979年1月(築47年)

物件の特徴

  • バストイレ別

セールスポイント

ご家族にも十分な広さの3LDK物件です。駅まで徒歩12分でアクセス可能です。天窓を採光のために天井の一部に設けています。スーパーが近いので買い物がしやすいです。ご家族やパートナーとの快適な暮らしを実現させるためには、住まいの環境はとても重要になってきます。お気に入りの住居を当社で見つけませんか。ぜひ当社の利用をご検討ください。

基本情報

販売戸数
-
総戸数
-
間取り / 詳細
3LDK
向き
-
建物面積(坪数)
129.29㎡(39.11坪)
土地面積(坪数)
196.59㎡(59.46坪)
建ぺい率 /
容積率
60%/200%
築年月
1979年1月(築47年)
駐車場 /
月額料金
有 -
土地権利
所有権
土地
(敷金 / 保証金)
- / -
建物構造
木造 / 2階建
傾斜地部分面積
-
路地状敷地
-
私道負担面積
-
セットバック
高圧線下面積
-
施工会社
-
用途地域
第一種中高層住居専用
地目 / 地勢
宅地 / 平坦
接道状況
一方(南西 公道 9.0m)
国土法届出要否
不要
都市計画
市街化区域
総区画数 /
販売区画数
-/-
現況
空家
その他
法令上の制限
-
取引態様
専任媒介
引渡し
相談
リフォーム
    2006年12月
    キッチン 浴室 トイレ 壁 床 全室
取引条件の
有効期限
2026年01月19日

設備条件

設備条件
  • リフォーム済 / フローリング / 公営水道 / 公共下水 / オール電化 / 電気有 / 照明器具付き / 駐車2台可 / IHクッキングヒーター / システムキッチン / バス・トイレ別 / トイレ2ヶ所 / 浴室1坪以上 / エアコン
設備(その他)
    -

その他

物件番号
93609240
管理コード
1903
建築確認番号
-
情報更新日
2026年01月05日
次回更新予定日
2026年01月19日
取扱会社
  • 奥村開発
  • 滋賀県湖南市柑子袋289-5 
  • TEL:0748-72-1988
  • 滋賀県知事 (1) 第3978号
  • (公社)滋賀県宅地建物取引業協会

支払いシミュレーション

月々の支払額
9.6
購入希望物件価格
万円
頭金
万円
金利
%
返済額(ボーナス1回分)
万円
返済期間

※ボーナスは自動で年2回分で計算されます。

近隣の物件

  1. 湖南市中央5丁目

    湖南市中央5丁目

    6DK (138.16㎡)

    1,580万円

  2. 湖南市岩根 中古戸建 1480万円

    湖南市岩根

    6DK (158.48㎡)

    1,480万円

  3. 5号地新築

    湖南市針

    3SLDK (110.75㎡)

    3,980万円

  4. 三雲戸建

    湖南市三雲

    5LDK (118.92㎡)

    850万円

湖南市中央4丁目

湖南市中央4丁目

1,880万円

-

3LDK(129.29㎡)

お気軽にお問い合わせください

無料お問い合わせ

奥村開発

0748-72-1988

09:00 ~ 18:00

(休:毎週水曜日 第1.2.3.5火曜日)